网站首页
网站支持IPv6
智能问答
无障碍
长者专区
繁
旧版
网站支持IPv6
搜 索
搜服务
长者专区
首页
领导信息
政务服务
政务公开
互动交流
大美中江
您当前所在位置:
首页
>> 信息发布
>> 基本信息公开
>> 公示公告
>> 正文
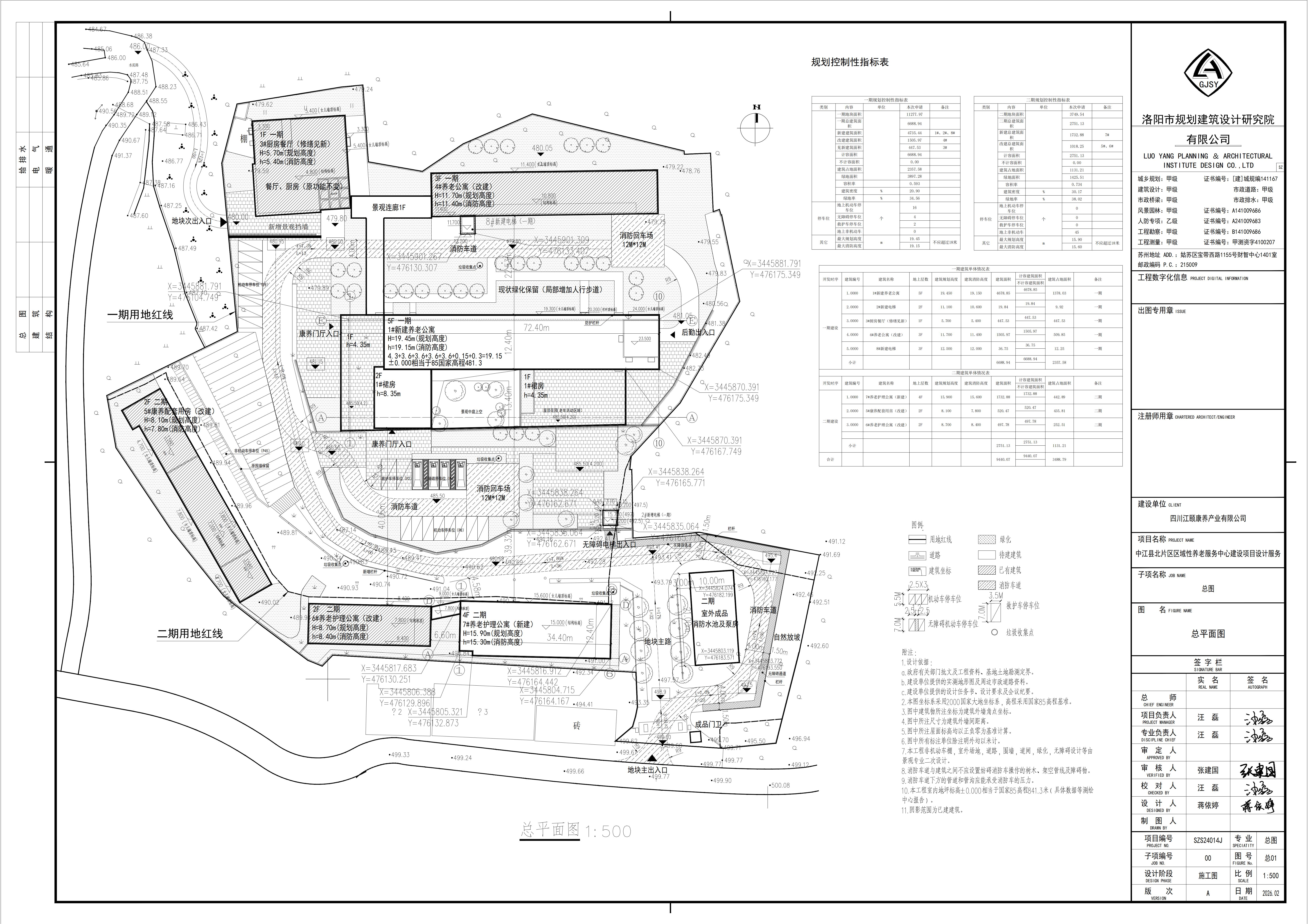
中江县自然资源和规划局关于对《中江县北片区区域性养老服务中心建设项目建筑设计方案》批前公示
索 引 号:
510623-2026-002026
公文种类:
发布机构:
中江县自然资源和规划局
成文日期:
2026-03-02
发布日期:
2026-03-02
文 号:
有 效 性:
有效
相关附件:
发布时间: 2026-03-02
来源:中江县自然资源和规划局
浏览次数:
字体大小:
小
中
大
打印
责任编辑:中江县自然资源和规划局