《城南壹号·熙悦府一期方案调整及二期方案设计》2022年11月10日专委会审查及2023年2月3日规委会审议通过,目前已形成报批方案,依据《中华人民共和国城乡规划法》和《四川省城乡规划条例》和《关于城乡规划公开公示的规定》的有关要求和规定,为保障公众利益,维护相关单位及个人的合法权益,现将相关事宜公示如下:
一、一期调整内容:
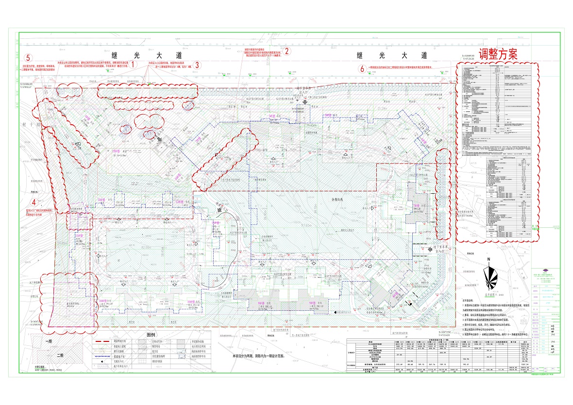
1.总平图:1号楼背后消防车道位置调整;2号楼消防扑救面向外移动3米;入口广场处沿街地面部分停车位及全民健身场所位置调整;局部位置绿地调整。
2.建筑单体:1号楼幕墙、转角窗、屋顶造型、阳台等立面进行局部调整,取消左侧商业烟道。2号楼商铺外形、标高、屋顶烟道局部调整。2、3、6号楼女儿墙实体调整为玻璃栏板;3、5、6号楼外立面局部调整。11、12号楼生活阳台及电梯厅前室玻璃栏板调整为实体栏板。
3.地下室:2号楼下负一层消防水池形状调整;负一层消防控制室由7号楼调整至5号楼;扩大6号楼下负一层原位置设备房;11号楼下负一层增加设备房,地下室轮廓优化;3号楼外负二层至负一层坡道处地下室轮廓优化;调整5、6号楼下负二层预留设备用房;负二层生活水泵房由7号楼调整至6号楼。
二、二期新建建筑面积:99330.77平方米。
具体详细附图请到中江自然资源局查看。
三、对上述规划如有意见和建议,请在公示时间(2023年
3月7日至2023年3月15日)内,持身份证明材料以书面形式到我局反映意见。要求听证的,可在公示期限内提出书面申请。无异议、异议不成立、或未要求听证的,视为同意上述调整。
书面材料提交地址:中江县自然资源局办公楼2楼
(中江县凯江镇荷花街)
申请地点:中江县自然资源局
联系电话:0838-7130079
附件:1.调整前总平图
2.调整后总平图
中江县自然资源局
2023年3月7日


网站首页

